Bierbrouwershorst 406
7328 NH Apeldoorn

Verkocht
  • 126 m2
  • 188 m2
  • 4
  • C
Ruime en goed onderhouden eengezinswoning op kindvriendelijke en groene locatie in Apeldoorn De Maten. Deze ruime woning is ideaal voor jonge starters of jonge gezinnen. De woning is zowel interieur als exterieur netjes onderhouden en direct te betrekken. De Bierbrouwershorst is een rustige en groene woonomgeving. Vanuit hier is het centrum van Apeldoorn op de fiets uitstekend bereikbaar. De woning is voorzien van 4 slaapkamers en een parkeerplek op eigen terrein voorzien van carport.

INDELING

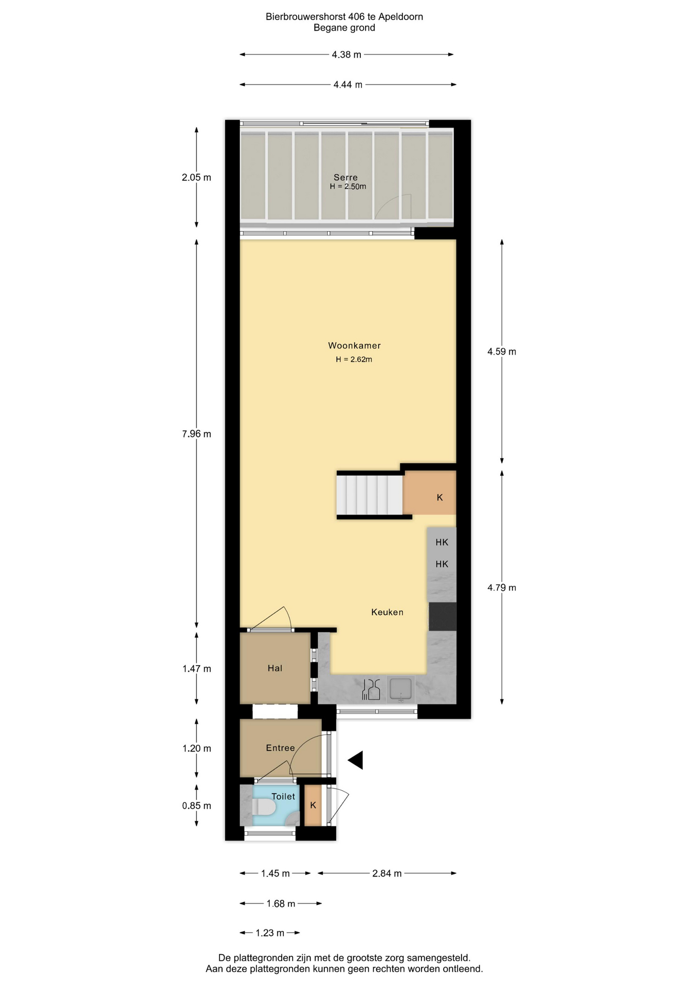
Begane grond: 
Binnenkomst in een verruimde hal/entree met toegang tot modern zwevend toilet met fontein. De meterkast bevindt zich aan de buitenzijde naast de voordeur. Vanuit de hal loop je de woonkamer met open keuken binnen. De woonkamer is tuingericht gelegen en ruim van formaat. De woonkamer heeft mooie grote raampartijen en een aangebouwde tuinkamer waardoor er nog meer ruimte en licht is ontstaan. De woonkamer, keuken en hal zijn recent dit jaar nog voorzien van een nieuwe laminaatvloer en plinten. Op warme dagen kun je heerlijk de deur openzetten en de tuinkamer bij de zitkamer betrekken. De gezellige en diepe achtertuin is gelegen op het westen. De tuin is netjes aangelegd en er zijn op verschillende niveau's zitjes gecreëerd. De keuken is aan de voorzijde in hoekopstelling geplaatst. De keuken is voorzien van diverse inbouwapparatuur. De trapopgang naar de eerste verdieping bevindt zich tussen de woonkamer en keuken in.

Eerste verdieping: 
Overloop met toegang tot 2 ruime slaapkamers. De master bedroom is gelegen aan de achterzijde en is voorzien een ruime en praktische inbouwkast en 2 grote dakramen wat de kamer heerlijk licht maakt. De andere slaapkamer is aan de voorzijde gelegen en geeft tevens toegang tot het knusse balkon. De badkamer is ook aan de voorzijde gelegen en betreft een moderne en neutrale badkamer. De badkamer is voorzien van elektrische vloerverwarming, ruime inloopdouche, dubbel wastafel meubel en een toilet.

Tweede verdieping: 
Middels de vaste trap kom je boven op de zolder. Op deze verdieping bevinden zich ook nog twee slaapkamers welke ook netjes afgewerkt zijn. De cv-ketel en aansluiting voor het wasapparatuur bevinden zich ook op deze verdieping.

De voortuin is netjes betegeld en voorzien van carport waardoor je kan parkeren op eigen terrein. Ook heb je via de voortuin toegang tot de berging.

BIJZONDERHEDEN:

- Goed onderhouden eengezinswoning;
- Voorzien van 4 slaapkamers;
- Ideaal voor starters of jonge gezinnen;
- Kindvriendelijk, groen en rustig gelegen in woonwijk;
- Grotendeels voorzien van kunststof kozijnen;
- Oprit voor parkeren op eigen terrein incl. carport;
- Vloerisolatie & HR / HR++ beglazing;
- Op fietsafstand van centrum & station. 

Energielabel C, geldig tot en met 25-10-2030.

Aanvaarding in overleg.

Interesse in dit huis? Schakel direct uw eigen NVM aankoopmakelaar in. 
Uw NVM aankoopmakelaar komt op voor uw belang en bespaart u tijd, geld en zorgen.

Kenmerken

Overdracht

  • Verkocht

Oppervlakte & inhoud

  • 126 m2
  • 416 m3
  • 188 m2
  • West

Bouw

  • Woonruimte
  • Bestaande bouw
  • C
  • 1980

Indeling

  • 6
  • 4
  • Mechanische ventilatie, Dakraam, Glasvezel kabel
© 2026 Van Laarhoven Makelaardij | Algemene voorwaarden | Disclaimer | Privacy verklaring | Grafisch ontwerp Drukmotief | Technische realisatie Sieronline B.V.